Chronicle of Arjun Emerald

Arjun Emerald rera registered project is located at Wadaj, Ahmedabad. at Wadaj, Ahmedabad. Arjun Emerald project is being developed by Parishi Infrastructure. Rera number of Arjun Emerald project is PR/GJ/AHMEDABAD/AHMEDABAD CITY/AUDA/RAA10994/031222. As per rera registration Arjun Emerald project is started on date 2022-09-16 and planned to complete on or before date 2026-06-30.

Project Summery of Arjun Emerald

Social Media
Contact

+91 9925146300

Rera No

PR/GJ/AHMEDABAD/AHMEDABAD CITY/AUDA/RAA10994/031222

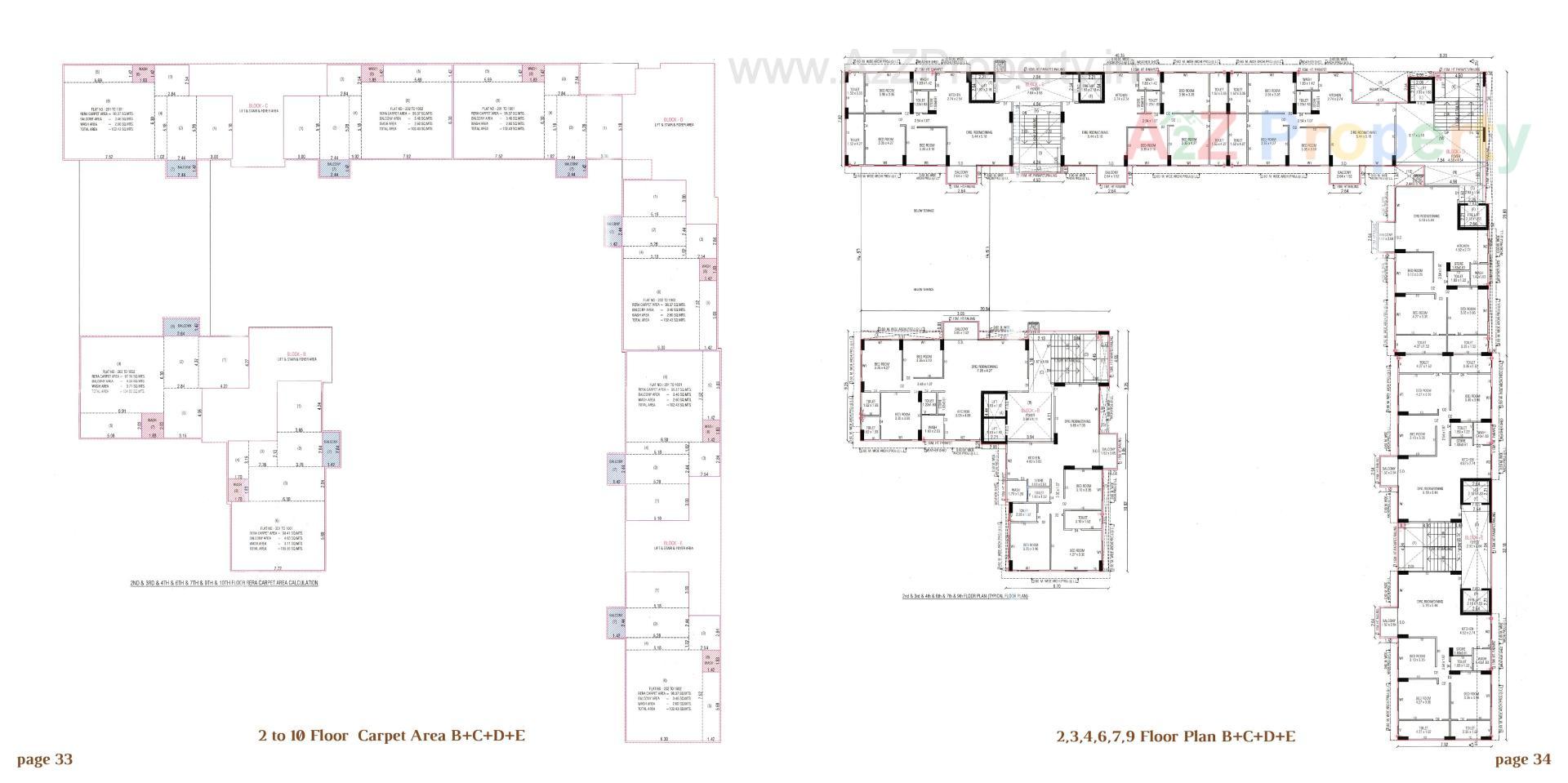
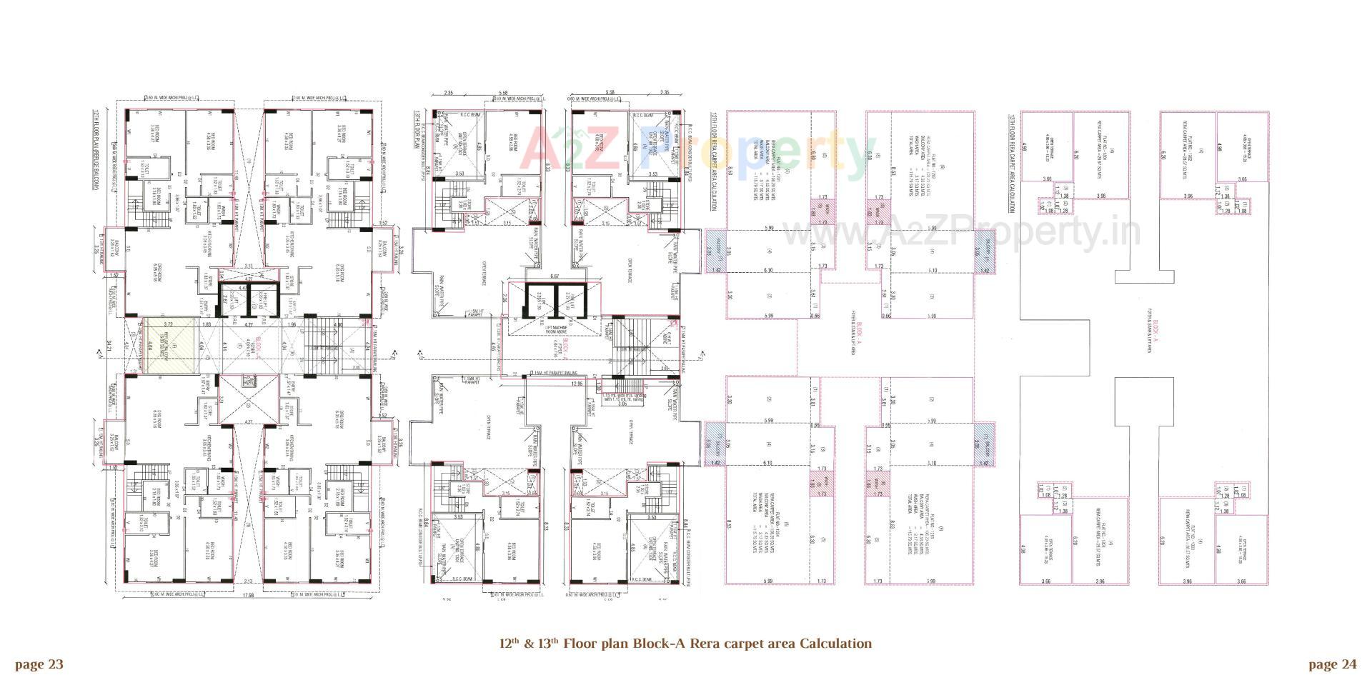
Unit Details of Arjun Emerald

Type Carpet Area (sqft)
A 1165 - 1473
B+C+D+E 1034 - 1360

3D Elevation

Layout Plan

Map Location of Arjun Emerald

Keyplan

Keyplan

Project Details

Address

Arjun Emerald

Near Naranpura Sports Complex, B/s Arjun Paradise, Pragatinagar, Naranpura

Contact

+91 9925146300

Email

arjunemerald9153@gmail.com

Share on
Promoters

Parishi Infrastructure

Rera No

PR/GJ/AHMEDABAD/AHMEDABAD CITY/AUDA/RAA10994/031222

Start Date

2022-09-16

End Date

2026-06-30

Area of Project

6,040

District

Ahmedabad

State

Gujarat

Project Type

Residential/Group Housing

Architect

KIRTIKUMAR K MAKWANA

Structure

SANDIP G THAKKAR

Disclaimer

The details displayed here are for informational purposes only. Information of real estate projects like details, floor area, location are taken from multiple sources on best effort basis. Nothing shall be deemed to constitute legal advice, marketing, offer, invitation, acquire by any entity. We advice you to visit the RERA website before taking any decision based on the contents displayed on this website.

Projects in wadaj

Projects in Ahmedabad